GEO5

Hướng dẫn trực tuyến

Tree
Settings
Chương trình:
Ngôn ngữ:

Terén

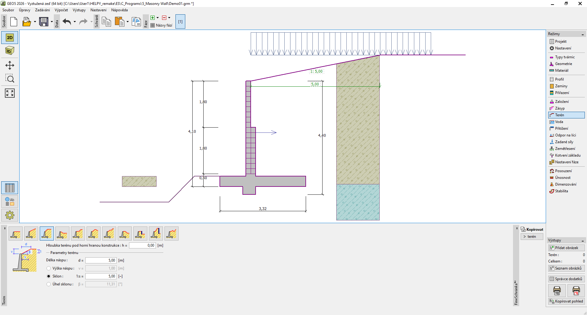
V rámu "Terén" se stiskem tlačítka volí tvar terénu. Zvolený tvar s grafickou nápovědou zadávaných hodnot, se zobrazuje v levé části rámu. Tvar terénu lze editovat buď v rámu vložením hodnot do zadávacích polí, nebo na desktopu pomocí aktivních kót.

Poslední volbou v nabídce je obecný tvar terénu. V tomto případě rám obsahuje tabulku se seznamem bodů terénu. První bod terénu  se souřadnicí [0, 0] leží na horním bodu konstrukce.

Výpočet zemních tlaků při šikmém terénu je popsán v teoretické části nápovědy "Průběh zemních tlaků při členitém terénu".

Rám "Terén"

Hãy tự trải nghiệm GEO5. Miễn phí.